Four years on: the science is nearly done — will politicians act?
SPECIAL REPORT- PART THREE: CSIRO flood modelling is nearing completion, leaving governments to decide whether large-scale mitigation works can be funded and built.
A party every month: Lennox wins $200k for year-long night-time program
From comedy and music to late-night dining, Lennox Head is preparing a new calendar of evening events designed to draw visitors to town and support local business.
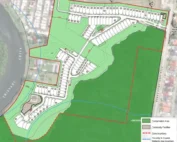
Spoonbill Reserve housing push defeated as council backs recreation future
Council votes to retain green space at Skennars Head park despite promise of potential $20m housing windfall
Four years on: Can planting trees help stop the next big flood?
PART TWO of our series looks at the growing push for nature-based flood mitigation, the science behind it, and why experts warn it cannot carry the burden alone in extreme events.
Matilda hits the road: Australia’s only mobile wildlife hospital farewells home on World Wildlife Day
The fully licensed mobile vet hospital departs on mission to help save injured animals and push for better protections for native wildlife.
Four years on: Can the region rise above division to stop the next big flood?
SPECIAL REPORT: Flood mitigation has been promised to prevent a repeat of Australia's worst disaster, will politics get in the way of it happening?
Ballina News Classics
Family behind Pat Morton lookout says no to name change
Ballina Shire's most iconic tourist stop is set to get a $1 million makeover, but is a new indigenous name is a step too far?
Richmond river rescue plan set to become state election issue
Ballina landholders could help end devastating Richmond River fish kills under a $70m restoration plan to be pushed ahead of the state election.
Vehicle recovered from Richmond River linked to missing woman
A vehicle has been recovered from the Richmond River in Ballina as police continue forensic examinations on remains found nearby
Council axes Wollongbar housing project in high-stakes property showdown
Ballina Shire Council has dumped its Wollongbar Medium Density Housing Project in a decision exposing deep divisions over debt, housing and the future of council-owned land.
Court clears GemLife development, rejects flood concerns
The Land and Environment Court has cleared the revised GemLife development in West Ballina, dismissing flood concerns and paving the way for more than 100 homes.
Security camera network approved for Ballina and Lennox Head
Ballina and Lennox Head will soon be covered by a new $1 million CCTV network after councillors unanimously approved the rollout at the first meeting of 2026.
Treasure hunting pauses as Ballina’s Salvage Shed shuts its doors
Ballina’s tip shop prepares to close as operator enters administration, but council explores reopening under new management
Last loaves as Alstonville’s sourdough siblings begin their next chapter
After six years of baking from Alstonville, young entrepreneurs Lucy, Lachlan and Noah Trease prepare to take their next big step.
Intense fire destroys two businesses at Alstonville industrial estate
Workers arriving for duty this morning were shocked to find their Alstonville workplace destroyed after an intense overnight fire marked by extreme heat and small explosions.
Developer commits to Cumbalum shops as Council backs push for timeline
The Catholic Church confirms it will proceed with a supermarket and 11 shops at Cumbalum, while councillors – backed by all but one – seek firm construction dates after years of delays.
Remembrance
Honouring the lives and legacies of loved ones from Ballina and the Northern Rivers.
Glitter dims at Mardi Gras following loss of Ballina-born diva
Tributes are flowing after the death of Ballina-born drag performer Maxi Shield, a star remembered for her warmth and community advocacy.
Vale Mary Davis: Rainbow paddlers honour a life of generosity and grit
Rainbow dragon boaters gathered on the water to farewell Mary Davis, honouring a much-loved coach whose legacy of inclusion and excellence lives on.
Community recognises former Deputy Mayor Eoin Johnston
Ballina Shire and NSW Parliament have honoured former Deputy Mayor Eoin Johnston, remembering his remarkable life of service, sport and community leadership.
State Funeral in Lennox Head for Esteemed Rural Fire Leader David Cook
A state funeral will be held next Monday in Lennox Head to honour Superintendent David Cook, a much-loved and highly respected leader of the NSW Rural Fire Service (RFS) Far North Coast Team. David “Cookie”
The Story Behind the Car Taking Top Prize at Ballina Show and Shine
A rusted American panel van rebuilt over 14 years takes top honours as 10,000 visitors help push Ballina’s rescue helicopter fundraiser towards a record goal
‘We share it’: Dick Wills reflects on Australia Day honour
Ballina veteran Dick Wills has received an Order of Australia Medal for service to veterans and their families, sharing the honour with wife Colleen as they approach 60 years of marriage.
Geoff Hutchinson named Ballina Shire Citizen of the Year
Marine Rescue Ballina captain Geoff Hutchinson has been named Ballina Shire Citizen of the Year on Australia Day, with community achievers and volunteers honoured across seven categories
Locals dominate the track as visitors lift the fashion stakes at Ballina Cup
The Ballina Cup mixed racing, fashion and colour, before an unexpected blackout briefly threw a spanner into proceedings.
Back on home greens, Indi Conlan claims Summerland doubles
The Summerland Series doubles have wrapped up at Cherry Street Sports, with Ballina-bred bowler Indi Conlan shining back on familiar turf
COMMENT: I won’t accept being called racist for telling someone’s story
From dual naming to name-calling — Rod Bruem comments on politics, language and why disagreement shouldn’t become denunciation.
COMMENT: I warned this would happen — and Ballina is paying the price
The court decision clearing the way for the GemLife confirms earlier warnings about the approach taken by Ballina Shire Council.


























