Cocaine, cannabis and meth: woman charged after 200kmh speed chase near Wardell
Police allege a high speed pursuit ending near Wardell was drug-fuelled, with a 33-year-old woman now facing charges in Ballina Court.
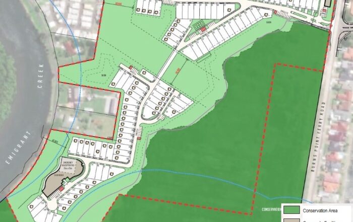
Court clears GemLife development, rejects flood concerns
The Land and Environment Court has cleared the revised GemLife development in West Ballina, dismissing flood concerns and paving the way for more than 100 homes.
COMMENT: I warned this would happen — and Ballina is paying the price
The court decision clearing the way for the GemLife confirms earlier warnings about the approach taken by Ballina Shire Council.
Security camera network approved for Ballina and Lennox Head
Ballina and Lennox Head will soon be covered by a new $1 million CCTV network after councillors unanimously approved the rollout at the first meeting of 2026.
$3 million redevelopment planned for Biala
Tenders are expected to be called this week for new classrooms, sensory rooms and upgraded facilities for the school
‘We share it’: Dick Wills reflects on Australia Day honour
Ballina veteran Dick Wills has received an Order of Australia Medal for service to veterans and their families, sharing the honour with wife Colleen as they approach 60 years of marriage.
Geoff Hutchinson named Ballina Shire Citizen of the Year
Marine Rescue Ballina captain Geoff Hutchinson has been named Ballina Shire Citizen of the Year on Australia Day, with community achievers and volunteers honoured across seven categories
COMMENT | How long will the Coalition split last?
Kevin Hogan’s ABC interview explains why the Nationals walked from the Coalition and why the fallout could force Canberra to pay closer attention to regional Australia.












